Lakossági fórum húsz részterület HÉSZ-módosításáról
Mint arról korábban beszámoltunk, a településrendezési eszközök módosításának előzetes tájékoztató dokumentációját szeptember 1-jéig elérhetővé tette az önkormányzat a város honlapján, a Polgárok Háza földszinti ügyfélszolgálati helyiségében és a Főépítészi Csoport irodájában. A módosítási szándékokkal, tervezetekkel kapcsolatos észrevételeket, javaslatokat ugyaneddig, azaz szeptember 1-jéig várják a foepitesz@erd.hu címre megküldve, postai úton a Polgármesteri Hivatal 2030 Érd, Alsó u. 1. címen, vagy a Polgárok Háza Ügyfélszolgálatán leadva.
A lakossági fórumon előadott tervek, javaslatok egy részét maga az önkormányzat terjesztette elő, de helyi vállalkozók és lakosok által benyújtott módosítási kérelmek is sorra kerültek.
Mint azt Szűcs Gábor alpolgármester hangsúlyozta: ez egy többlépcsős folyamat, a településrendezők megvizsgálják és előkészítik a konkrét javaslatokat, amelyek még egyszer újra visszakerülnek véleményezésre, és csak utána fog a közgyűlés döntetni ezekben az esetekben a HÉSZ módosításáról. A következő lakossági fórum év végére várható.
A fórumon két terület kapott nagyobb érdeklődést, azaz több kérdést. A papi földeken már működő záportározó, amivel kapcsolatban az önkormányzat felvetette, hogy a kertvárosi lakóövezet helyett intézményi vagy vegyes területté is át lehetne sorolni. Szűcs Gábor úgy nyilatkozott, hogy szeretnék, ha az érdiek közösen döntenének arról, hogy maradjon-e a terület lakóövezet, azaz épüljenek tovább ott családi házak vagy intézményi területté, esetleg vegyes területté átsorolva óvoda, bölcsőde is létesülhessen ott.
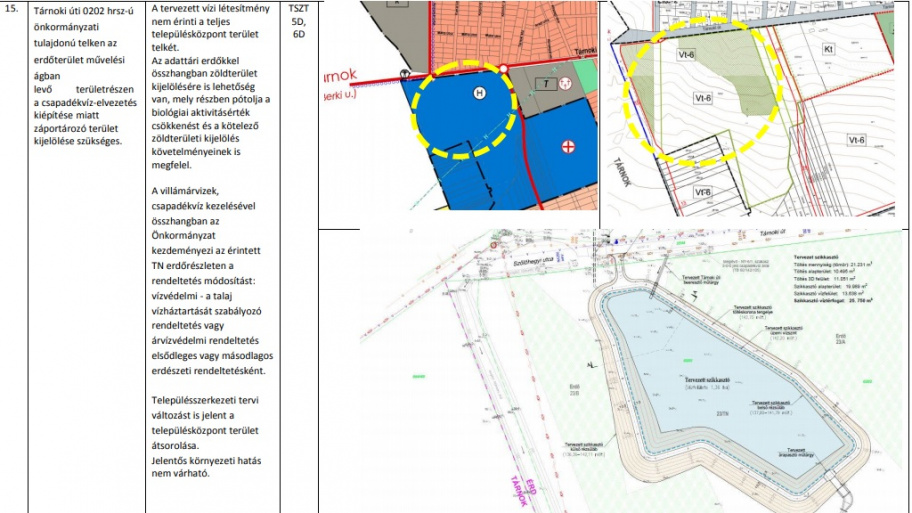
A másik terület, amivel kapcsolatban a legtöbb kérdése felmerült a résztvevőknek, a leendő szikkasztó volt a Tárnoki út végén. Az alpolgármester elmondta, hogy alapvetően erdőművelési ág alatt lévő területről van szó, aminek az lenne a feladata a jövőben, hogy megfogja és elszikkassza a Parkváros felől, hirtelen esőzések hatására érkező nagyobb vízmennyiséget, ami akár a mezőgazdasági területeken, a Bagoly utcai ingatlanokban vagy Tárnokban is kárt tehetne. Ezt az ötletet Simó Károly, a FIDESZ-KDNP-Összefogás frakcióvezetője is támogatta.
Sok hozzászóló nehezményezte azt, hogy hiába költöztek kertvárosba, a közvetlen szomszédságukban is van ahol gombamód nőnek ki a földből a társasházak, ráadásul a telkek nagy részének térkövezésével, csekélyke zöldfelület meghagyásával. Ezzel szemben azonban az önkormányzatnak sajnos nem maradt sok jogi lehetősége fellépni, mert március 1-jével az építésügyi hatósági feladatokat a kormányhivatal látja el.
- Jogi lehetőségeink eléggé behatároltak, azaz ki lehet jelenteni, hogy nincsenek. Egyedül a HÉSZ-ben tudunk olyan korlátozásokat, szabályrendszereket bevezetni, amelyekkel útját tudjuk állni ennek a folyamatnak - nyilatkozta kérdésünkre Szűcs Gábor, aki hozzátette: - Azt szeretnénk elérni, hogy megálljon az a tendencia, hogy tiszta családiházas-övezetben, egy-egy régebben épült, többgenerációs épületet megvásárolva a beruházó szabálytalanul több lakást alakít ki, és ezzel az egész környék élhetőségét is elrontja, másrészt átveri a vásárlót is, aki akár egy egész élet munkáját forintosítva beleteszi ennek az ingatlannak a megvásárlásába, és mégse olyan környezetet kap, amit szeretett volna.
- Az éremnek azonban két oldala van - hangsúlyozta az alpolgármester. - Van olyan vállalkozói magatartás is, amit támogatni szeretnénk. Ilyen az, hogy a városközpontban, a főutak mentén a városias, nagyvárosias jelleget erősítsük, egy olyan városkép kialakításával, ami mindannyiunk közös büszkesége lehet. Ezeken a helyeken lehetőséget teremtünk a beruházóknak, építési vállalkozóknak arra, hogy egy normális szabályrendszer keretében akár társasházat, akár mást építhessenek, amire a piacnak igénye van. De szeretném az építési vállalkozókat is a közös gondolkodásra kérni, hogy tegyenek javaslatokat ezekre a tervekre az önkormányzatnak, és ne azt az utat kövessék, hogy a profit maximalizásálása miatt családi házas övezeteket tesznek tönkre.

